• OUAGADOUGOU
  • |
  • à partir de 27 300 000 XOF

Description

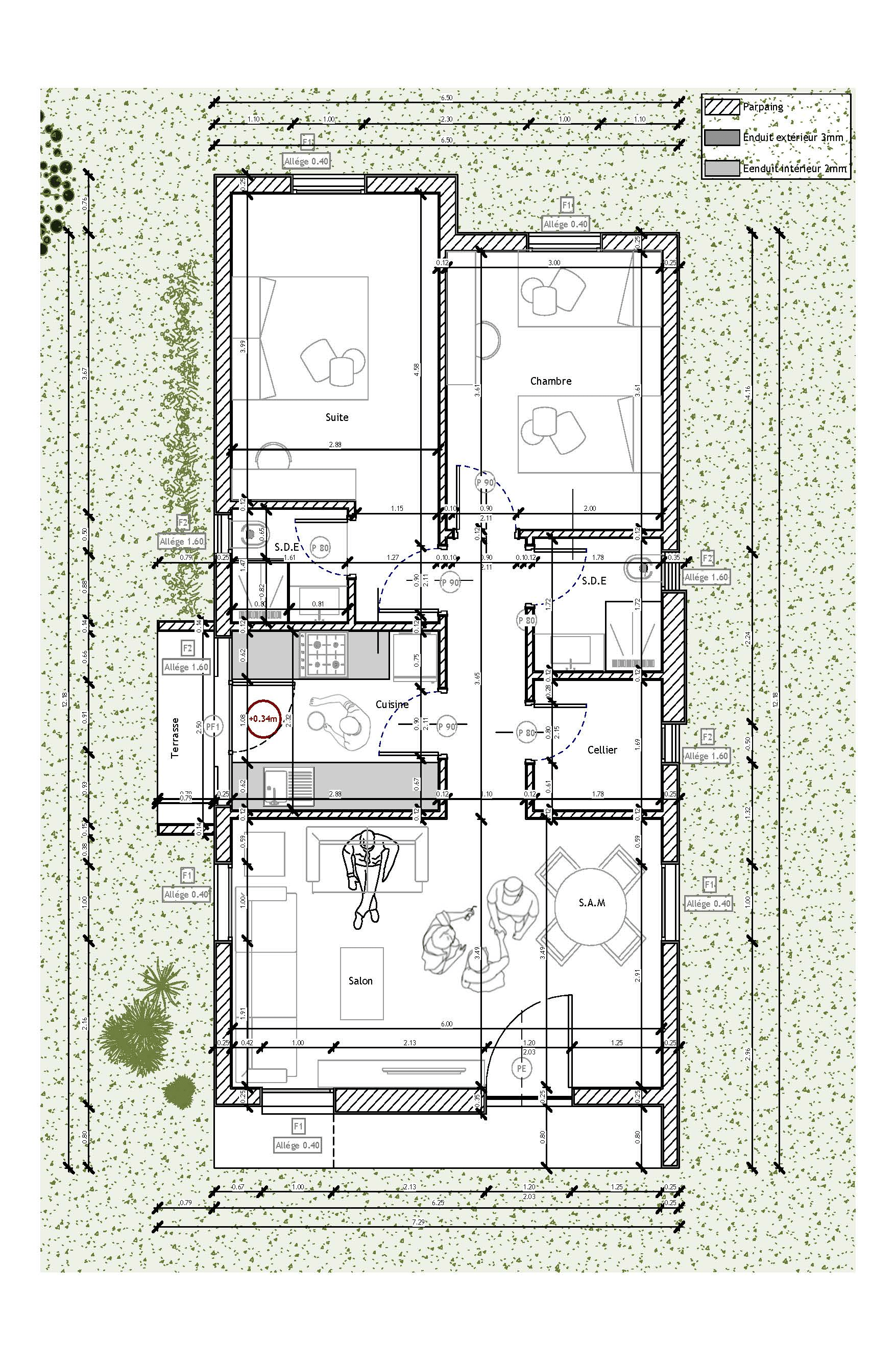
La Citrus est représentée ici en F3. Elle est disponible sur la résidence Yelba Confort nichée au Sud Est de la Ville Nouvelle de Yennenga en version senior et en version junior en F3 et F4. Chacun de ces bâtiments est disponible avec les niveaux de finitions suivant : Gros œuvre Fermé (GOF), Semi-Fini et Fini.

Localisation

avenue KWAME N'KRUMAH
01BP1337 Ouagadougou

Voir le téléphone

Boulevard de l’Insurrection Populaire
01BP1337 Ouagadougou

Voir le téléphone

Route de Fada face à l’alimentation SONACOF
01BP1337 Ouagadougou

Voir le téléphone

Nous suivre sur les réseaux sociaux :

  • Alerte email
  • Favoris 0
  • 0